VILLA SINGOLA

In vendita
Cernusco sul Naviglio - via cadore, 29
1.080.000 €
Villa
Categoria
228
m2
3
Camere
4
Bagni
1
Box
Descrizione
Vendita Esclusiva e Luminosa VILLA singola di nuova realizzazione con finiture di Design e giardino di proprieta'.

Cernusco sul Naviglio (MI) Via Cadore.
ZONA Residenziale, vicinanze centro.
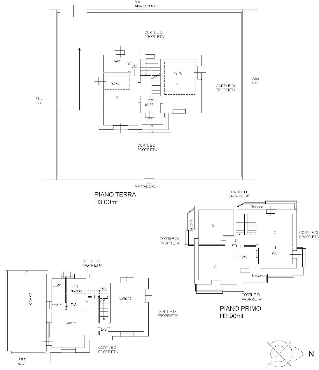
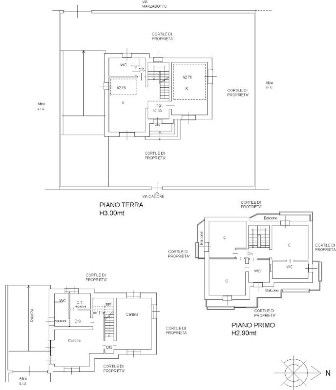
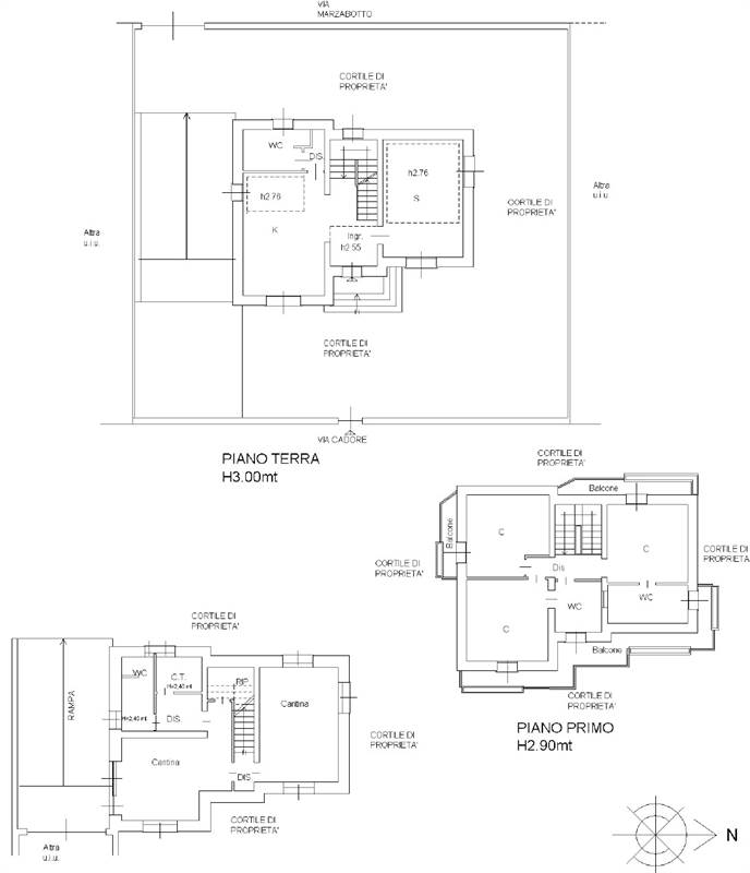
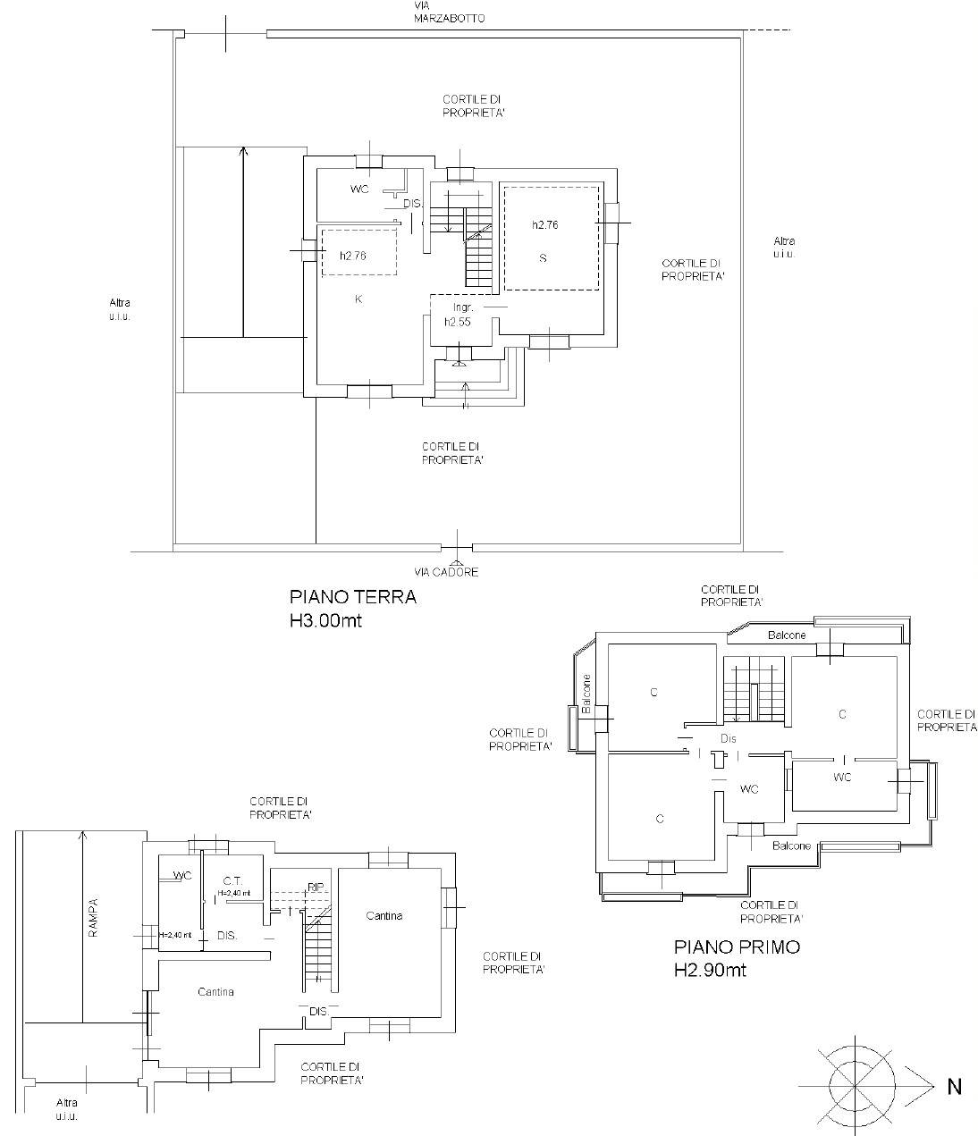
Spaziosa Villa singola, sviluppata su due piani abitativi oltre al piano S1.
COMPOSIZIONE: Ingresso, soggiorno, cucina abitabile con sala pranzo, disimpegno e bagno.
Al piano superiore, si sviluppa la zona notte, composta da camera padronale con bagno dedicato e balcone, 2 camere da letto matrimoniali, bagno e secondo balcone
Il piano S1, con altezza Mt 2,50, con ingresso dedicato, si compone di un locale tecnico, di un bagno/lavanderia e due ampi locali taverna. Completa la proprietà il box auto.

L'immobile è stato oggetto, nel 2023, di una radicale e completa ristrutturazione, con le moderne tecnologie he hanno permesso il raggiungimento della classe energetica A4.
Riscaldamento con caldaia a condensazione ibrida (gas e pompa di calore), batteria di accumulo, impianto fotovoltaico.
Predisposizione di aria condizionata, antifurto e video sorveglianza.
La villa rappresenta un’opportunità unica per chi cerca una soluzione abitativa flessibile, con ampi spazi interni ed esterni e con la possibilità di personalizzare ulteriormente la proprietà. Tutti i locali della villa sono cablati con rete dati con connessione ethernet categoria 6. Il box presenta una basculante elettrica e si accede da il passo carraio elettrico.

I materiali e le finiture sono di pregio e di alta qualita'.
Pavimentazione in gres porcellanato, serramenti isolanti con doppio vetro, sanitari sospesi, termo arredo nei bagni, doccia walk in, tapparelle motorizzate. Il videocitofono e' disponibile su tutti e tre i piani.
ESPOSIZIONE: Nord, Sud, Est, Ovest

5 minuti a piedi dal Centro Storico di Cernusco sul Naviglio
1,5 km dalla metropolitana verde di Cernusco sul Naviglio
15 minuti dall' ospedale San Raffaele
4 minuti dalla scuola Materna A. Manzoni (1km)
4 minuti dalla scuola Primaria A. Manzoni (1km)
8 minuti dalla scuola Secondaria (1,5 km)
Comodo per ingresso per Autostrade e Tangenziali





Per appuntamenti e informazioni contattare Gruppo GMG, Via Bourdillon n.17, Cernusco sul Naviglio (MI) 02 9240516 -- 328 563 4135.

Le informazioni e le immagini non costituiscono elemento contrattuale.





Caratteristiche principali
Codice:
Via Cadore-VILLA S_copia
Città:
Cernusco sul Naviglio
Categoria:
Villa
Locali:
7
Camere:
3
Bagni:
4
Mq:
228
Box:
1
Mq Box:
30
Balconi:
3
Piano:
Terra
Anno:
2023
Anno ristrutturazione:
2023
Classe energetica:
A4
23,08 kWh/m²a
Stato Immobile:
Nuovo
Grado:
Signorile
Posizione:
Centro
Panorama:
Vista Aperta
Orientamento:
Nord Ovest Sud Est
Lati Liberi:
4
Giardino:
Privato
Tipo Soggiorno:
Doppio
Tipo Cucina:
Abitabile
Riscaldamento:
Autonomo
Tipo Impianto:
Radiatori
Fonte Energetica:
Gas
Acqua Calda:
Autonoma
Raffrescamento:
Split
Infissi:
PVC Doppio Vetro
Serramenti:
Nuovo
Persiana:
Tapparella PVC
Pavim. Giorno:
Gres Porcellanato
Pavim. Notte:
Gres Porcellanato
Pavim. Cucina:
Gres Porcellanato
Pavim. Bagno:
Gres Porcellanato
Accessori
Antifurto
Aria Condizionata
Cancello Elettrico
Doppi Vetri
Fibra Ottica
Impianto Fotovoltaico
Impianto Satellitare
Lavanderia
Pannelli Solari
Porta Blindata
Ripostiglio
Tapparelle Elettriche
Veranda
Video Citofono
Mappa
Richiedi informazioni
Invia
Cookie preference