Vendita 3 Locali

In vendita
Cernusco sul Naviglio - Via Mameli , 23
185.000 €
Appartamento
Categoria
78
m2
3
Locali
2
Camere
1
Bagni
Descrizione
Vendita 3 Locali
Cernusco sul Naviglio (MI) Via G Mameli n.23.

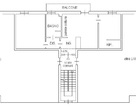
L’ appartamento si compone di: Ingresso, soggiorno con cucina a vista e balcone, disimpegno bagno con vasca, 2 ampie camere da letto,
Completa la proprietà di locale uso cantina al piano S1.
ZONA: Residenziale, zona Carrefour Vespucci
FABBRICATO: Palazzina del 1970 di 4 piani fuori terra con facciata rifatta.
PIANO: Secondo (Senza Ascensore).
CONDIZIONI: L’immobile si presenta in buone condizioni, abitabile.
FINITURE: Pavimentazione in parquet nel soggiorno, marmette nelle camere da letto, ceramica in bagno, serramenti con doppio vetro isolante in PVC.
ARREDAMENTO: Non arredato.
RISCALDAMENTO: Autonomo con caldaia a gas.
SPESE CONDOMINIALI: Euro 1.000,00 annuali.
CONSEGNA: Luglio 2026.

Per informazioni e appuntamenti contattare Gruppo GMG, Via Bourdillon n.17, Cernusco sul Naviglio (MI) 02 9240516 -- 328 5634135 -- 335 6856221.

Le informazioni e le immagini non costituiscono elemento contrattuale



Caratteristiche principali
Codice:
V-3L-Mameli
Città:
Cernusco sul Naviglio
Categoria:
Appartamento
Locali:
3
Camere:
2
Bagni:
1
Mq:
78
Balconi:
1
Piano:
2
Anno:
1967
Anno ristrutturazione:
2003
Classe energetica:
F
Stato Immobile:
Buono
Grado:
Medio
Lati Liberi:
1
Arredi:
Non Arredato
Tipo Soggiorno:
Soggiorno
Tipo Cucina:
A Vista
Riscaldamento:
Autonomo
Tipo Riscaldam.:
Caldaia
Tipo Impianto:
Radiatori
Fonte Energetica:
Gas
Acqua Calda:
Autonoma
Infissi:
PVC Doppio Vetro
Serramenti:
Buono
Persiana:
Tapparella PVC
Pavim. Giorno:
Ceramica
Pavim. Notte:
Ceramica
Pavim. Cucina:
Ceramica
Pavim. Bagno:
Ceramica
Accessori
Doppi Vetri
Mappa
Richiedi informazioni
Invia
Cookie preference