4 LOCALI CON TERRAZZO

In vendita
San Giuliano Milanese (San Giuliano) - VIA ROSSINI
470.000 €
Appartamento
Categoria
165
m2
4
Locali
3
Camere
2
Bagni
Descrizione
VENDITA SENZA COMMISSIONI DI AGENZIA.
San Giuliano Milanese (MI) , Via Rossini, zona Laghetto, a pochi passi dalla Via Cavour, Nuova Residenza, con consegna Dicembre 2025, in Classe Energetica A da progetto.

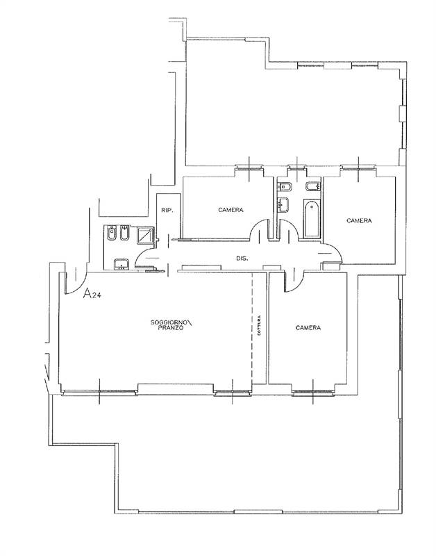
APPARTAMENTO 4 LOCALI PIANO QUINTO CON DOPPIO TERRAZZO.
con doppia esposizione
Ingresso, soggiorno con porta finestra scorrevole per l’ accesso al terrazzo zona giorno, cucina abitabile, disimpegno notte, 3 camere da letto, terrazzo zona notte, bagno con vasca, bagno con doccia, ripostiglio/lavanderia.
Completo di locale uso cantina al piano S1. Possibilità di Box auto a partire da Euro 23.000,00

CARATTERISTICHE: La costruzione, di sei piani fuori terra oltre piano terreno, situata in via Rossini, prevede Soluzioni abitative da 2, 3 e 4 locali, tutte dotate di spazi esterni vivibili e sarà realizzata con materiali e criteri di ultima generazione per il massimo confort abitativo e per il risparmio energetico.
-Pompa di calore ad alto rendimento collegata a bollitori per soddisfare la richiesta di acqua sanitaria e riscaldamento.
-Pannelli fotovoltaici per la produzione dell’ energia elettrica necessaria al funzionamento della pompa di calore e delle altre parti comuni che necessitano di energia elettrica.
-Sistema di riscaldamento a pavimento di tipo centralizzato-contabilizzato, per la gestione autonoma di ogni unità immobiliare
-Contabilizzatori dei consumi di acqua fredda e acqua calda.
-Termostato ambiente.
-Predisposizione impianto di aria condizionata.
-Predisposizione impianto di antifurto perimetrale.
-Cappotto esterno ad alto isolamento termico e acustico.
-Sanitari sospesi in porcellana di colore bianco della Ideal Standard serie TESI.
-Termo arredo nei bagni.
-Serramenti in pino massello di colore bianco con vetrate isolanti a bassa dispersione termica, con apertura a battente e vasistas, con maniglie in alluminio satinato e dotati di zanzariere.
-Tapparelle in pvc pesante motorizzate.
-Impianto di videocitofono.
-Cantine di pertinenza consegnate piastrellate e intonacate.

Capitolato di pregio, possibilità di personalizzazione degli interni, pagamenti personalizzati, possibilità di accollo muto.

Per informazioni e appuntamenti contattare l’ufficio vendite Gruppo GMG –02 9240516 – 335 6856221 –

Le immagini e le informazioni non costituiscono elemento contrattuale.


Caratteristiche principali
Codice:
SGM-24-Rossini
Città:
San Giuliano Milanese (San Giuliano)
Categoria:
Appartamento
Locali:
4
Camere:
3
Bagni:
2
Mq:
165
Terrazzi:
2
mq Terrazzo:
117
Piano:
5
Anno:
2025
Classe energetica:
A
Stato Immobile:
In Costruzione
Grado:
Signorile
Lati Liberi:
2
Giardino:
Privato
Arredi:
Non Arredato
Tipo Soggiorno:
Soggiorno
Tipo Cucina:
A Vista
Riscaldamento:
Centralizzato
Tipo Riscaldam.:
Pompa di Calore
Tipo Impianto:
Pavimento
Fonte Energetica:
Fotovoltaico
Acqua Calda:
Centralizzata
Raffrescamento:
Predisposizione
Infissi:
Legno Doppio Vetro
Serramenti:
Nuovo
Persiana:
Tapparella PVC
Pavim. Giorno:
Gres Porcellanato
Pavim. Notte:
Gres Porcellanato
Pavim. Cucina:
Gres Porcellanato
Pavim. Bagno:
Gres Porcellanato
Tipo Saracinesca:
Elettrica
Accesso Disabili:
Nessuna Barriera
Accesso interno disabili:
Pieno accesso
Accessori
Ascensore
Cancello Elettrico
Doppi Vetri
Impianto Satellitare
Porta Blindata
Ripostiglio
Tapparelle Elettriche
Video Citofono
Zanzariere
Mappa
Richiedi informazioni
Invia
Cookie preference