3 LOCALI, CLASSE A4

In vendita
Lentate sul Seveso (Copreno) - VIA TRIESTE
167.000 €
Appartamento
Categoria
80
m2
3
Locali
2
Camere
1
Bagni
Descrizione
VENDITA NUOVO 3 LOCALI IN COSTRUZIONE.

Nel Comune di Lentate sul Seveso (MB), in località Copreno, Via Trieste.
LA TUA NUOVA CASA IN CLASSE “A”, REALIZZATA CON LE PIU’MODERNE TECNOLOGIE PER MASSIMO CONFORT ABITATIVO E PER IL RISPARMIO ENERGETICO
In centro paese, intervento di recupero di una Casa di Corte, realizzato in classe energetica A4.
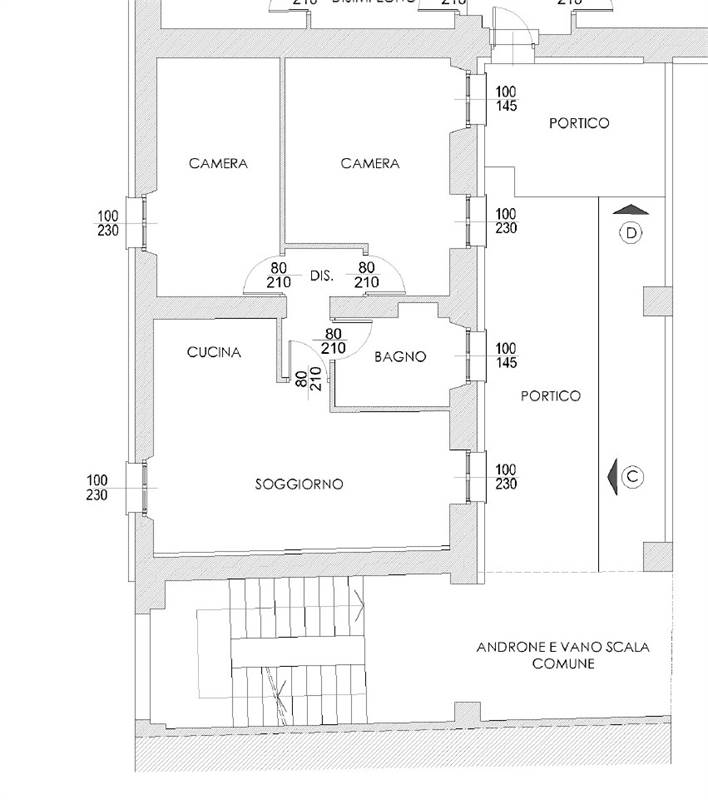
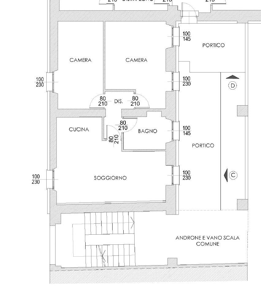
L’ APPARTAMENTO 3 locali, con una superficie di mq.80, al piano PRIMO, con loggiato, si compone di:
Ingresso, soggiorno, angolo cucina a vista, disimpegno, bagno con doccia, 2 camere da letto, portico esclusivo.
Consegna: Primavera 2026
POSIZIONE: A 20 KM DA MILANO E DA COMO
COLLEGAMENTI: STAZIONE FERROVIARIA DI CARIMATE A 1 KM
SERVIZI IN ZONA: Asilo e scuola primaria a 500 metri, centro commerciale "Lentate" a 700 metri.
La classe energetica A4 garantisce un'ottima efficienza energetica e un notevole risparmio sui consumi.
L'appartamento è in corso di realizzazione, con materiali e finiture di alta qualità con capitolato a scelta dell’acquirente.
Ideale per coppie o piccole famiglie che desiderano vivere in un ambiente tranquillo e ben collegato con i principali servizi e le infrastrutture della zona.
CARATTERUSTICHE TECNICHE E CAPITOLATO
*Facciate con isolamento termico a “cappotto” in EPS additivato con graffite spessore 100 mm, conduttività 0,031 W/Mk.
*I tavolati divisori interni agli appartamenti verranno realizzati a “secco” mediante posa in opera di telaio zincato con lastra singola in cartongesso da ambo i lati ed interposta lana di roccia per isolamento acustico e finitura a gesso.
*Pavimenti interni
I pavimenti saranno in piastrelle di gres porcellanato, rettificato, misura 60 x 60 cm o in alternativa pavimento in piastrelle di gres porcellanato, rettificato, effetto legno, come da campionatura disponibile alla visione presso il cantiere.
*Rivestimenti interni
I rivestimenti dei bagni e delle cucine saranno in gres porcellanato, come da campionatura disponibile alla visione presso il cantiere, nel locale bagno è prevista un’altezza di 120 cm perimetrale e di 210 cm nel vano doccia.
*Pavimenti esterni
I pavimenti saranno in piastrelle di gres porcellanato, rettificato, misura 30 x 30 cm, come da campionatura disponibile alla visione presso il cantiere, con coefficiente antiscivolo R10
*SERRAMENTI ED OSCURANTI
Serramenti
Serramenti in PVC profilo VEKA SOFTLINE 76 MD, color noce esterno e color bianco interno, con guarnizione centrale e moderno sistema multicamera con profondità costruttiva di base di 76 mm. Il profilo fornito combina forti prestazioni isolanti con una particolare efficienza economica nella produzione. Valore Uf = 1,1 w/mqK – Isolamento acustico fino a 47 db – Resistenza ai furti fino alla RC2.
*Persiane
Persiane in lega di alluminio “Profil Sistem”, color marrone, a stecche orientabili.
*PORTE INTERNE
Le porte interne, nelle misure previste dal progetto, saranno in MDF, finitura verniciata color laccato bianco, serratura magnetica, cerniera a bilico e maniglia in alluminio finitura cromo satinato.
*Sanitari marca IDEAL STANDARD filo muro serie I.Life S.
Rubinetteria. Miscelatori marca Grohe serie “Eurosmart”.
*Prese e interruttori BTICINO serie Matix color bianco con placche colore bianco o nero.
*Videocitofono a colori e cronotermostato WIFI digitale.
*Impianto fotovoltaico con moduli silicio monocristallino, in copertura, con potenza installata da 2,30 Kw a 3,00 Kw per ogni unità immobiliare per il contenimento dei consumi energetici.
*IMPIANTO DI RISCALDAMENTO
L’impianto di riscaldamento sarà un sistema radiante a pavimento su tutta la superficie dell’appartamento, con dotazione di termo-arredo nel locale bagno. Il sistema di generazione sarà una pompa di calore Aria-Acqua modello BAXI AWHP2R 4MR_1 o similare con sistema di regolazione climatica + zona per singola unità immobiliare.
*Le tinteggiature interne (pareti e soffitto) saranno eseguite per tutti i locali con biopittura all’acqua di colore e marca a scelta della Direzione Lavori, data due mani più una mano di fondo, con rullo e/o pennello.

Per informazioni e per organizzare una visita in cantiere contattare Gruppo GMG, partner UNICREDIT RESERVICES, Via Bourdillon n.17, Cernusco sul Naviglio (MI)
Le informazioni e le immagini non costituiscono elemento contrattuale

Caratteristiche principali
Codice:
LENT-C-COPRENO
Città:
Lentate sul Seveso (Copreno)
Categoria:
Appartamento
Locali:
3
Camere:
2
Bagni:
1
Mq:
80
Piano:
1
Anno:
2025
Classe energetica:
A4
16,48 kWh/m²a
Stato Immobile:
In Costruzione
Grado:
Medio
Posizione:
Centro
Lati Liberi:
2
Arredi:
Non Arredato
Tipo Soggiorno:
Soggiorno
Tipo Cucina:
A Vista
Riscaldamento:
Autonomo
Tipo Riscaldam.:
Pompa di Calore
Tipo Impianto:
Pavimento
Fonte Energetica:
Elettrico
Acqua Calda:
Autonoma
Raffrescamento:
Predisposizione
Infissi:
PVC Doppio Vetro
Serramenti:
Nuovo
Persiana:
Persiana Metallo
Pavim. Giorno:
Gres Porcellanato
Pavim. Notte:
Gres Porcellanato
Pavim. Cucina:
Gres Porcellanato
Pavim. Bagno:
Gres Porcellanato
Accesso Disabili:
No
Isolamento termico:
Cappotto esterno
Isolamento acustico:
Isolamento completo
Spessore cappotto (cm):
10
Accessori
Doppi Vetri
Impianto Fotovoltaico
Porta Blindata
Video Citofono
Mappa
Video
Richiedi informazioni
Invia
Cookie preference