VENDITA DESIO AMPIO 2 LOCALI 92 MQ

In vendita
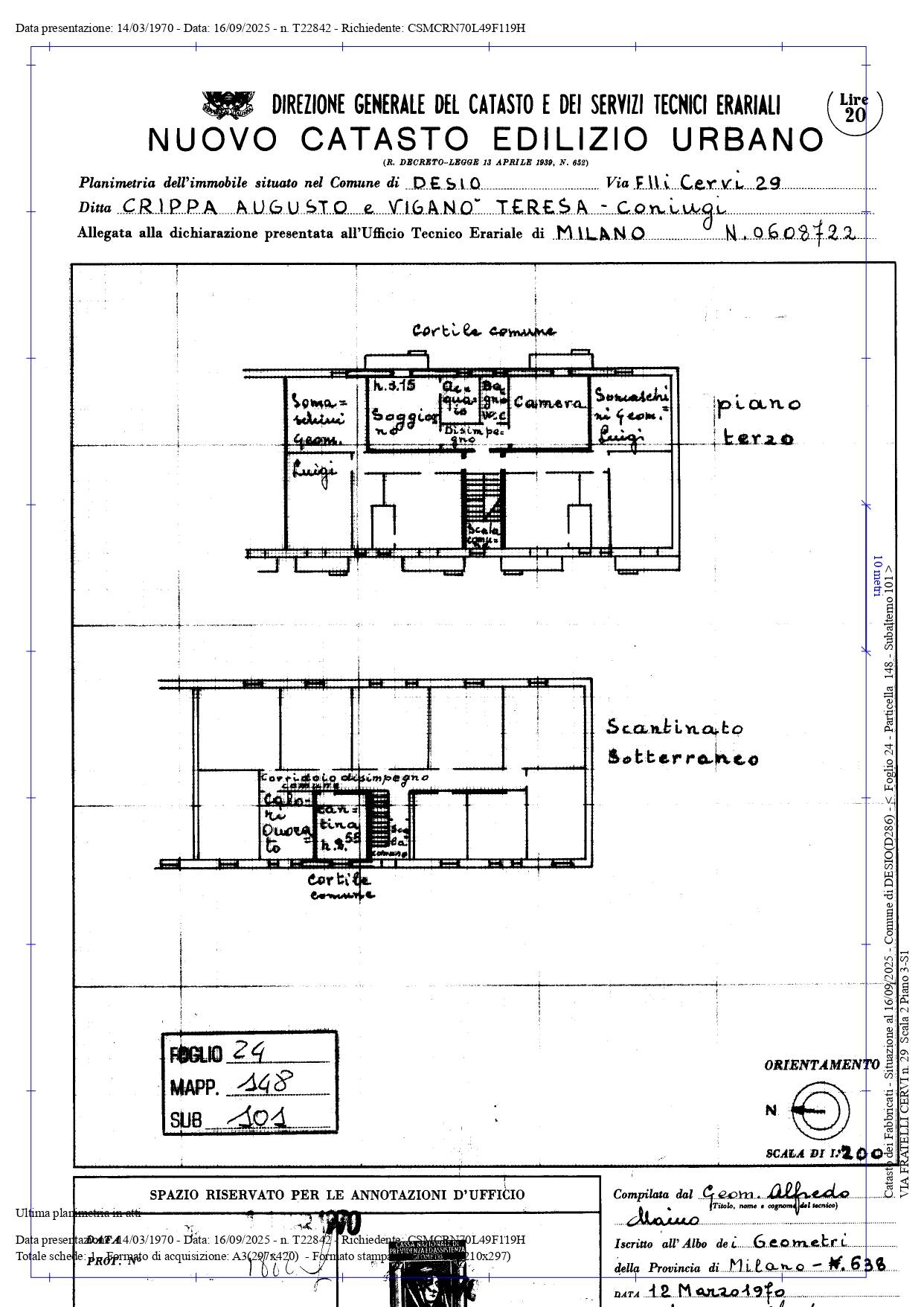
Desio - via fratelli cervi, 29
118.000 €
Appartamento
Categoria
92
m2
2
Locali
1
Bagni
Descrizione
Vendita 2 LOCALI 92 MQ
TERZO PIANO SENZA ASCENSORE
DESIO (MB) Via Fratelli Cervi 29. Edificio con cappotto termico gia' realizzato.
Appartamento composto da: Ingresso, soggiorno doppio con affaccio sul balcone, cucinotto, bagno con vasca, ampia camera da letto matrimoniale.
Completa la proprietà il locale uso cantina.
ZONA: Residenziale, a due passi dal centro e da tutti i servizi cittadini.
FABBRICATO: Palazzina del 1970 di 3 piani fuori terra, con facciata in intonaco civile e cappotto e termico.
PIANO: Terzo.
CONDIZIONI: L’immobile si presenta in condizioni da ristruttare, abitabile.
FINITURE: Pavimentazione in marmette, serramenti in legno.
ARREDAMENTO: Non arredato.
RISCALDAMENTO: Autonomo.
SPESE CONDOMINIALI: Euro 1200,00 annuali.
CONSEGNA: Libero.

Per informazioni e appuntamenti contattare l’Ufficio Vendite Gruppo GMG, Via Bourdillon n.17, Cernusco sul Naviglio (MI) -- 02 9240516 -- 3 2 8 5 6 3 4 1 3 5 -- 335 6856221.
Sito: www.gruppogmgcase.com
Mail: gruppogmg@tiscali.it

Le informazioni e le immagini non costituiscono elemento contrattuale.
Caratteristiche principali
Codice:
DESIO_copia2
Città:
Desio
Categoria:
Appartamento
Locali:
2
Bagni:
1
Mq:
92
Piano:
3
Anno:
1970
Classe energetica:
G
Stato Immobile:
Da Ristrutturare
Grado:
Medio
Posizione:
Centro
Panorama:
Vista Aperta
Orientamento:
Est
Lati Liberi:
1
Tipo Soggiorno:
Doppio
Tipo Cucina:
Cucinotto
Riscaldamento:
Autonomo
Tipo Riscaldam.:
Caldaia
Tipo Impianto:
Radiatori
Fonte Energetica:
Metano
Acqua Calda:
Autonoma
Infissi:
Legno
Serramenti:
Da Sostituire
Persiana:
Tapparella PVC
Pavim. Giorno:
Marmette
Pavim. Notte:
Marmette
Pavim. Cucina:
Marmette
Accessori
Cancello Elettrico
Porta Blindata
Mappa
Planimetrie
Richiedi informazioni
Invia
Cookie preference