3 LOCALI, CLASSE A4

In vendita
Lentate sul Seveso (Copreno) - VIA TRIESTE
164.000 €
Appartamento
Categoria
78
m2
3
Locali
2
Camere
Descrizione
VENDITA NUOVO 3 LOCALI IN COSTRUZIONE.
*****Promozione spese allacciamento comprese nel prezzo*****

Nel Comune di Lentate sul Seveso (MB), in località Copreno, Via Trieste.
LA TUA NUOVA CASA IN CLASSE “A”, REALIZZATA CON LE PIU’MODERNE TECNOLOGIE PER MASSIMO CONFORT ABITATIVO E PER IL RISPARMIO ENERGETICO
In centro paese, intervento di recupero di una Casa di Corte, realizzato in classe energetica A4.
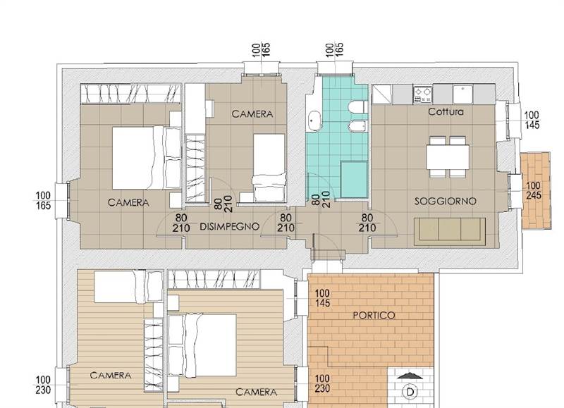
L’ APPARTAMENTO 3 locali, con una superficie di mq.78, al piano PRIMO, con loggiato, si compone di:
Ingresso, soggiorno, angolo cucina a vista, bagno con doccia, disimpegno, 2 camere da letto, portico esclusivo.
Consegna: Primavera 2026
POSIZIONE: A 20 KM DA MILANO E DA COMO
COLLEGAMENTI: STAZIONE FERROVIARIA DI CARIMATE A 1 KM
SERVIZI IN ZONA: Asilo e scuola primaria a 500 metri, centro commerciale "Lentate" a 700 metri.
La classe energetica A4 garantisce un'ottima efficienza energetica e un notevole risparmio sui consumi.
L'appartamento è in corso di realizzazione, con materiali e finiture di alta qualità con capitolato a scelta dell’acquirente.
Ideale per coppie o piccole famiglie che desiderano vivere in un ambiente tranquillo e ben collegato con i principali servizi e le infrastrutture della zona.
CARATTERUSTICHE TECNICHE E CAPITOLATO
*Facciate con isolamento termico a “cappotto” in EPS additivato con graffite spessore 100 mm, conduttività 0,031 W/Mk.
*I tavolati divisori interni agli appartamenti verranno realizzati a “secco” mediante posa in opera di telaio zincato con lastra singola in cartongesso da ambo i lati ed interposta lana di roccia per isolamento acustico e finitura a gesso.
*Pavimenti interni
I pavimenti saranno in piastrelle di gres porcellanato, rettificato, misura 60 x 60 cm o in alternativa pavimento in piastrelle di gres porcellanato, rettificato, effetto legno, come da campionatura disponibile alla visione presso il cantiere.
*Rivestimenti interni
I rivestimenti dei bagni e delle cucine saranno in gres porcellanato, come da campionatura disponibile alla visione presso il cantiere, nel locale bagno è prevista un’altezza di 120 cm perimetrale e di 210 cm nel vano doccia.
*Pavimenti esterni
I pavimenti saranno in piastrelle di gres porcellanato, rettificato, misura 30 x 30 cm, come da campionatura disponibile alla visione presso il cantiere, con coefficiente antiscivolo R10
*SERRAMENTI ED OSCURANTI
Serramenti
Serramenti in PVC profilo VEKA SOFTLINE 76 MD, color noce esterno e color bianco interno, con guarnizione centrale e moderno sistema multicamera con profondità costruttiva di base di 76 mm. Il profilo fornito combina forti prestazioni isolanti con una particolare efficienza economica nella produzione. Valore Uf = 1,1 w/mqK – Isolamento acustico fino a 47 db – Resistenza ai furti fino alla RC2.
*Persiane
Persiane in lega di alluminio “Profil Sistem”, color marrone, a stecche orientabili.
*PORTE INTERNE
Le porte interne, nelle misure previste dal progetto, saranno in MDF, finitura verniciata color laccato bianco, serratura magnetica, cerniera a bilico e maniglia in alluminio finitura cromo satinato.
*Sanitari marca IDEAL STANDARD filo muro serie I.Life S.
Rubinetteria. Miscelatori marca Grohe serie “Eurosmart”.
*Prese e interruttori BTICINO serie Matix color bianco con placche colore bianco o nero.
*Videocitofono a colori e cronotermostato WIFI digitale.
*Impianto fotovoltaico con moduli silicio monocristallino, in copertura, con potenza installata da 2,30 Kw a 3,00 Kw per ogni unità immobiliare per il contenimento dei consumi energetici.
*IMPIANTO DI RISCALDAMENTO
L’impianto di riscaldamento sarà un sistema radiante a pavimento su tutta la superficie dell’appartamento, con dotazione di termo-arredo nel locale bagno. Il sistema di generazione sarà una pompa di calore Aria-Acqua modello BAXI AWHP2R 4MR_1 o similare con sistema di regolazione climatica + zona per singola unità immobiliare.
*Le tinteggiature interne (pareti e soffitto) saranno eseguite per tutti i locali con biopittura all’acqua di colore e marca a scelta della Direzione Lavori, data due mani più una mano di fondo, con rullo e/o pennello.

Per informazioni e per organizzare una visita in cantiere contattare Gruppo GMG, partner UNICREDIT RESERVICES, Via Bourdillon n.17, Cernusco sul Naviglio (MI)
Le informazioni e le immagini non costituiscono elemento contrattuale

Caratteristiche principali
Codice:
COPRENO-D-P1_copia8
Città:
Lentate sul Seveso (Copreno)
Categoria:
Appartamento
Locali:
3
Camere:
2
Mq:
78
Balconi:
1
Mq Balcone:
2
Piano:
1
Anno:
2025
Classe energetica:
A4
18 kWh/m²a
Stato Immobile:
In Costruzione
Grado:
Medio
Posizione:
Centro
Lati Liberi:
3
Arredi:
Non Arredato
Tipo Soggiorno:
Soggiorno
Tipo Cucina:
A Vista
Riscaldamento:
Autonomo
Tipo Riscaldam.:
Pompa di Calore
Tipo Impianto:
Pavimento
Fonte Energetica:
Elettrico
Acqua Calda:
Autonoma
Infissi:
Legno Doppio Vetro
Serramenti:
Nuovo
Pavim. Giorno:
Gres Porcellanato
Pavim. Notte:
Gres Porcellanato
Pavim. Cucina:
Gres Porcellanato
Pavim. Bagno:
Gres Porcellanato
Accesso Disabili:
No
Accessori
Doppi Vetri
Impianto Fotovoltaico
Porta Blindata
Mappa
Video
Richiedi informazioni
Invia
Cookie preference