4 LOCALI CON GIARDINO

In vendita
Vignate - Via S. Ambrogio
515.000 €
Appartamento
Categoria
176
m2
4
Locali
3
Camere
2
Bagni
Descrizione
VENDITA DIRETTA, SENZA COMMISSIONI DI AGENZIA
Vignate (MI) Via S. Ambrogio – Sta sorgendo la nuova “Residenza del Parco”, realizzata in Classe Energetica A da progetto, consegna fine Estate 2025
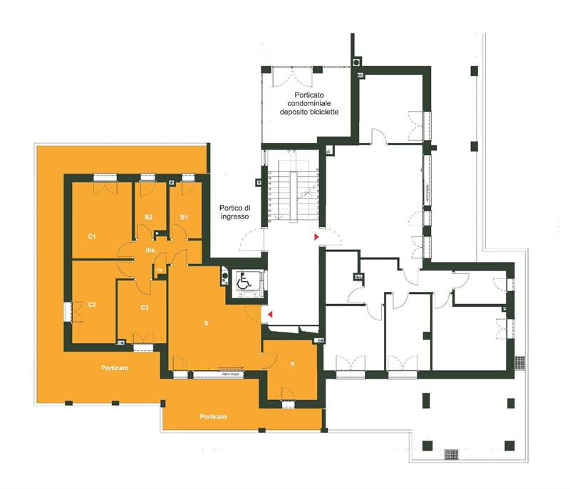
Appartamento di 4 locali, piano terra, con giardino privato, composto da:
Ingresso, soggiorno con porta finestra scorrevole, cucina abitabile, entrambi con accesso al portico di mq. 44 e al giardino di mq. 372, disimpegno notte, camera matrimoniale, 2 camere singole, ripostiglio, doppi servizi finestrati.
Completa la proprietà il locale cantina di 15 mq.
Disponibilità di box auto a partire da Euro 28.000,00
Capitolato di pregio a scelta del cliente
Consegna prevista fine Estate 2025.

La Residenza del Parco è progettata per raggiungere una elevata classificazione energetica per il risparmio energetico. La palazzina, di 4 piani fuori terra, sarà realizzata con materiali e tecnologie per il massimo confort abitativo.
CAPITOLATO:
-Struttura in cemento armato e tamponamenti esterni antisismici
-Piano interrato in “Vasca Bianca” impermeabilizzata a perfetta tenuta dell’acqua sia dal terreno che dalla falda acquifera
-Muratura perimetrale esterna con elevate prestazioni di isolamento termico
-Rivestimento esterno a cappotto termico eseguito secondo le nuove norme tecniche antincendio
-Isolamento acustico
-Impianto di riscaldamento radiante a pavimento con pompa di calore e contabilizzatore di consumo indi duale.
-Pre-dimensionamento dei percorsi linee elettriche per la futura installazione wall box nelle autorimesse.
-Rampa box riscaldata
Finiture:
-Soglie e davanzali in pietra naturale
-Portoncini blindati anti effrazione classe 4
-Porte interne Timack, collezione Glamour in varie essenze
-Serramenti in alluminio preverniciato con vetrocamera, completi di zanzariere
-Sistema oscurante frangisole a lamelle in alluminio orientabili motorizzato
-Ventilazione meccanica del serramento in soggiorno
-Pavimentazione interna: Gres porcellanato in vari formati e colori nella zona giorno, parquet nella zona notte
-Pavimentazione cantine e box in piastrelle monocottura.
-Bagni con sanitari sospesi Ideal Standard o similari, rubinetterie Ceramix o similari
-Imbiancatura appartamenti completa di mano di isolante e prima mano di pittura in colore bianco.
Predisposizioni
-Predisposizione impianto di antifurto perimetrale
-Predisposizione di aria condizionata in ogni locale

Per informazioni e appuntamenti contrattare l’ufficio vendite Gruppo GMG, Cernusco sul Naviglio (MI) Via Bourdillon n.17. -- 02 9240516 -- 335 6856221 -- 328 5634135.
Le informazioni e le immagini non costituiscono elemento contrattuale.




Caratteristiche principali
Codice:
C2-Vignate_copia5
Città:
Vignate
Categoria:
Appartamento
Locali:
4
Camere:
3
Bagni:
2
Mq:
176
Mq Giardino:
372
Piano:
Terra
Anno:
2024
Classe energetica:
A4
Stato Immobile:
In Costruzione
Grado:
Signorile
Orientamento:
Ovest Est
Lati Liberi:
3
Giardino:
Privato
Arredi:
Non Arredato
Tipo Soggiorno:
Soggiorno
Tipo Cucina:
Abitabile
Riscaldamento:
Conta Calorie
Tipo Riscaldam.:
Pompa di Calore
Tipo Impianto:
Pavimento
Fonte Energetica:
Fotovoltaico
Acqua Calda:
Centralizzata
Raffrescamento:
Predisposizione
Infissi:
Metallo Doppio Vetro
Serramenti:
Nuovo
Persiana:
Oscurante Metallo
Pavim. Giorno:
Gres Porcellanato
Pavim. Notte:
Parquet
Pavim. Cucina:
Gres Porcellanato
Pavim. Bagno:
Gres Porcellanato
Tipo Saracinesca:
Elettrica
Accesso Disabili:
Nessuna Barriera
Accesso interno disabili:
Pieno accesso
Isolamento:
Presente
Isolamento termico:
Cappotto esterno
Isolamento acustico:
Isolamento completo
Spessore cappotto (cm):
10
Accessori
Ascensore
Cancello Elettrico
Doppi Vetri
Impianto Fotovoltaico
Impianto Satellitare
Porta Blindata
Ripostiglio
Tapparelle Elettriche
Video Citofono
Mappa
Video
Richiedi informazioni
Invia
Cookie preference