4 LOCALI CON GIARDINO

In vendita
Vignate - Via S Ambrogio
570.000 €
Appartamento
Categoria
194
m2
4
Locali
3
Camere
2
Bagni
Descrizione
VIGNATE (MI) "RESIDENZA DEL PARCO" – A POCHI KM DA MILANO
Direttamente dal costruttore, SENZA COMMISSIONI DI AGENZIA.

In via S. Antonio sorge la nuova RESIDENZA DEL PARCO, un'esclusiva realizzazione immobiliare immersa nel verde e progettata per offrirti il massimo comfort abitativo con soluzioni moderne e sostenibili.
Il progetto è realizzato secondo i più elevati standard di efficienza energetica, garantendo la classe A4.
CONSEGNA: I lavori sono già in corso e la consegna è prevista per novembre 2025.

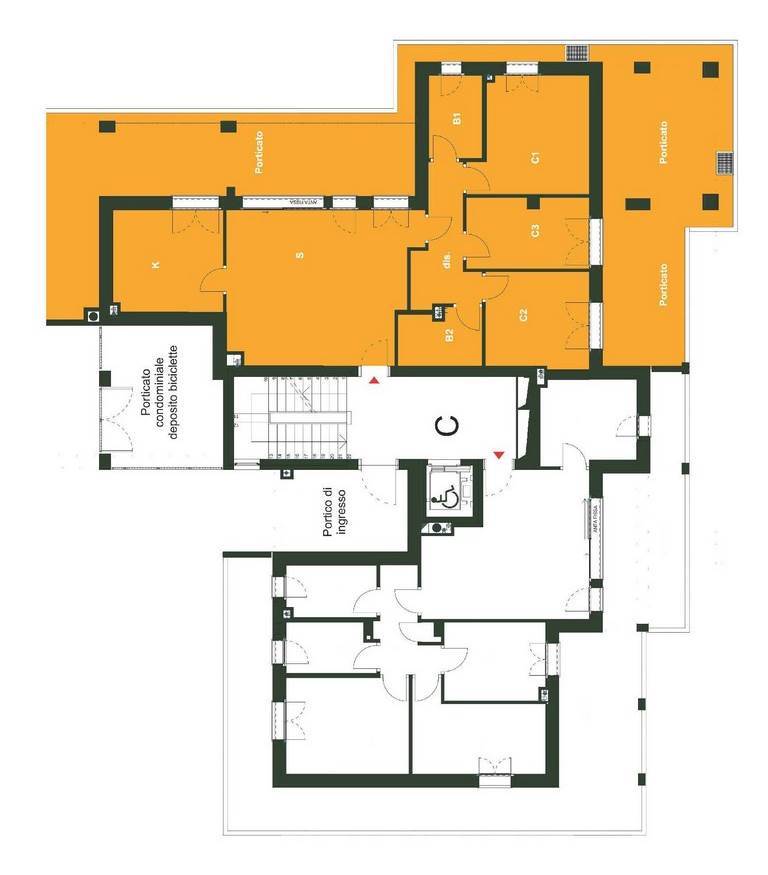
L’appartamento C1, di 4 LOCALI al piano terreno con giardino su tre lati, con esposizione SUD/EST, si compone di:
Ingresso, ampio soggiorno con porte finestra affacciate sul portico e sul giardino, cucina abitabile, disimpegno notte, doppi servizi, camera matrimoniale, camera doppia e camera singola. La proprietà è completa di un locale uso cantina di mq.15 al piano S1.
Disponibili box auto singoli e doppi a partire da Euro 28.000,00.

ZONA: Posizione strategica, a pochi km da Milano, vicina al Parco di Trenzanesio-Invernizzi, distante 300 mt dal passante ferroviario FF SS Milano/Venezia e a soli 2 Km dalla fermata della Metropolitana MM2 Cassina de' Pecchi.

CARATTERISTICHE E DOTAZIONI: La Residenza del Parco offre qualità, innovazione e sostenibilità e il perfetto equilibrio tra natura e connessioni urbane.



✔ Struttura in cemento armato e tamponamenti esterni antisismici
✔ Piano interrato in “Vasca Bianca” a perfetta tenuta dell’acqua sia dal terreno che dalla falda acquifera senza manutenzione
✔ Involucro esterno con grandi prestazioni di isolamento termico e acustico
✔ Isolamento a cappotto eseguito secondo le nuove norme antincendio con fascia ignifuga ogni 3 mt di altezza
✔ Isolamento acustico degli impianti, dei solai e delle murature di divisione tra appartamenti e vano scala
✔ Impianto di riscaldamento radiante a pavimento con pompa di calore e caldaia di soccorso e backup
✔ Pannelli fotovoltaici a diretto utilizzo delle singole unità immobiliari e dei servizi condominiali
✔ Classe energetica certificata A4
✔ Impianto elettrico box e cantine direttamente collegato al contatore dell’appartamento
✔ Pre-dimensionamento dei percorsi linee elettriche nei box per futura installazione wall box in totale autonomia
✔ Imbiancatura degli appartamenti, preparazione pareti, mano di isolante, prima mano di colore bianco, mano successiva di finitura a carico dell'acquirente
✔ Finiture signorili
✔ Pavimenti in gres porcellanato rettificato in varie misure compreso l'effetto legno
✔ Parquet nelle camere, rivestimenti in gres porcellanato in varie misure
✔ Sanitari Ideal Standard New Tesi o similari
✔ Serramenti in alluminio preverniciati bianco completi di zanzariere e sitema oscurante frangisole
✔ Balconi con soffitti rivestiti in doghe di legno marino
✔ Tutti le unità immobiliari sono comprensive di Cantina
Pagamenti personalizzati e garantiti da fidejussione

Per chi è alla ricerca della nuova casa vicino a Milano, immersa nel verde e dotata di tecnologie all'avanguardia, la Residenza del Parco è la scelta perfetta.
Per ricevere le planimetrie dettagliate e prenotare una visita contattare Gruppo GMG-Cernusco sul Naviglio (MI) 02 -9240516 – 335 6856221 – 328 5634135.

Le informazioni e le immagini non costituiscono elemento contrattuale.

Caratteristiche principali
Codice:
C1-Vignate_copia5
Città:
Vignate
Categoria:
Appartamento
Locali:
4
Camere:
3
Bagni:
2
Mq:
194
Mq Giardino:
173
Piano:
Terra
Anno:
2024
Classe energetica:
A4
Stato Immobile:
In Costruzione
Grado:
Signorile
Lati Liberi:
3
Giardino:
Privato
Arredi:
Non Arredato
Tipo Soggiorno:
Soggiorno
Tipo Cucina:
Abitabile
Riscaldamento:
Conta Calorie
Tipo Riscaldam.:
Pompa di Calore
Tipo Impianto:
Pavimento
Fonte Energetica:
Fotovoltaico
Acqua Calda:
Centralizzata
Raffrescamento:
Predisposizione
Infissi:
Metallo Doppio Vetro
Serramenti:
Nuovo
Persiana:
Tapparella PVC
Pavim. Giorno:
Gres Porcellanato
Pavim. Notte:
Parquet
Pavim. Cucina:
Gres Porcellanato
Pavim. Bagno:
Gres Porcellanato
Tipo Saracinesca:
Elettrica
Accesso Disabili:
Nessuna Barriera
Accesso interno disabili:
Pieno accesso
Isolamento:
Presente
Isolamento termico:
Cappotto esterno
Isolamento acustico:
Isolamento completo
Spessore cappotto (cm):
10
Accessori
Ascensore
Cancello Elettrico
Doppi Vetri
Impianto Fotovoltaico
Impianto Satellitare
Porta Blindata
Tapparelle Elettriche
Video Citofono
Zanzariere
Mappa
Video
Richiedi informazioni
Invia
Cookie preference