NEGOZIO 3 VETRINE

In affitto
Brugherio - Via Kennedy, 28
850 € / mese
Negozio
Categoria
105
m2
1
Locali
1
Bagni
2
Posti auto
Descrizione
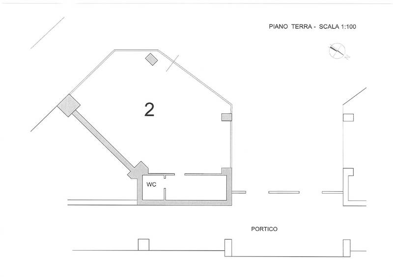
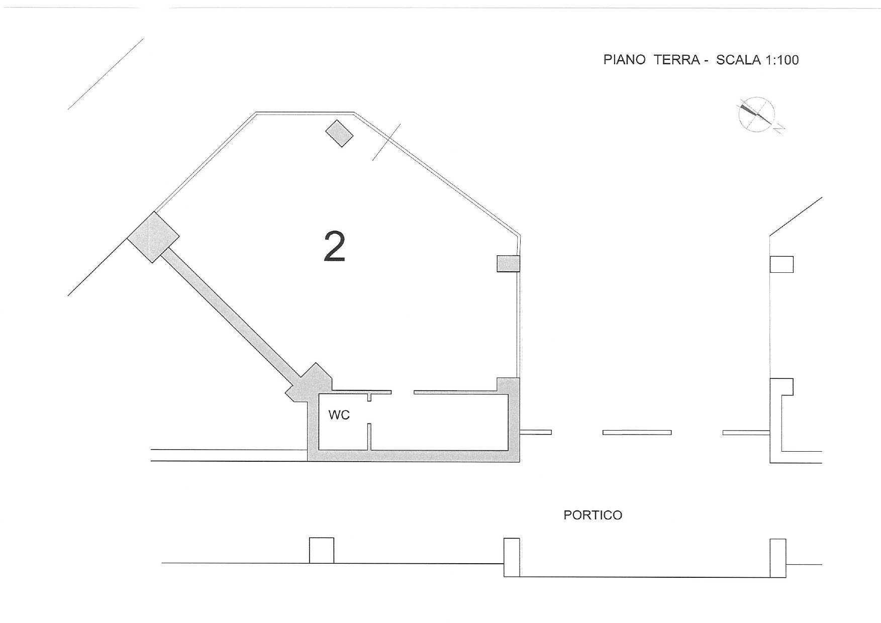
Affitto NEGOZIO mq 95 circa, oltre due posti auto coperti.
Brugherio, nel centro Commerciali "Kennedy"

Il negozio è situato all'ingresso del piano terreno, in posizione di massima visibilità.
Locale open space, dotato di tre ampie vetrate, oltre ripostiglio e bagno.
A completamento due posti auto coperti al piano S1.
L'impianto di riscaldamento e di aria condizionata sono di tipo centralizzato; il centro è inoltre dotato di servizio di vigilanza
SPESE CONDOMINIALI: Euro 500,00 mensili, che comprendono riscaldamento, raffrescamento e servizio di vigilanza
CONSEGNA: Libero

Per informazioni e appuntamenti contattare Gruppo GMG, Via Bourdillon n.17, Cernusco sul Naviglio (MI).

Le informazioni e le immagini non costituiscono elemento contrattuale.
Caratteristiche principali
Codice:
Kennedy 95
Città:
Brugherio
Categoria:
Negozio
Spese condominiali:
6.600 € / anno
Locali:
1
Bagni:
1
Mq:
105
Posti auto:
2
Piano:
Terra
Anno:
1990
Classe energetica:
F
Stato Immobile:
Buono
Grado:
Medio
Lati Liberi:
3
Arredi:
Non Arredato
Riscaldamento:
Centralizzato
Tipo Riscaldam.:
Ventilconvettore
Tipo Impianto:
Aria
Fonte Energetica:
Gas
Acqua Calda:
Autonoma
Raffrescamento:
Centralizzato
Infissi:
Alluminio Doppio Vetro
Serramenti:
Ottimo
Pavim. Bagno:
Ceramica
Pavimento:
Ceramica
Canoni Anticipati:
Un Mese
Tipo Contratto:
6+6 Anni
Numero Vetrine:
Tre
Accesso Disabili:
Nessuna Barriera
Accesso interno disabili:
Pieno accesso
Tipo Registr.:
Tradizionale
Accessori
Aria Condizionata
Doppi Vetri
Mappa
Richiedi informazioni
Invia
Cookie preference