NEGOZIO 2 VETRINE

In affitto
Cernusco sul Naviglio - Via Corridoni, 32
1.500 € / mese
Negozio
Categoria
90
m2
2
Locali
1
Bagni
Descrizione
AFFITTO NEGOZIO DOPPIO INGRESSO, DUE VETRINE
Cernusco sul Naviglio (MI) Via Corridoni, Piazza Ghezzi

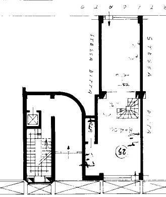
Il negozio in Affitto dispone di doppio ingresso, sulla Piazza Ghezzi e sulla Via Corridoni, e si compone di: Spazio aperto, con doppia esposizione, ripostiglio, oltre a sotto negozio collegato da scala interna con bagno con antibagno.

ZONA: Zona Tre Torri, piazza della Chiesa
FABBRICATO: Palazzina del 1987
PIANO: Terra e S1.
CONDIZIONI: L’immobile si presenta in buone condizioni, subito utilizzabile.
FINITURE: Pavimentazione in ceramica.
DOTAZIONI: Serrande motorizzate.
ARREDAMENTO: Non arredato.
RISCALDAMENTO: Centralizzato con valvole termostatiche.
SPESE CONDOMINIALI: Euro 2.600, annuali compreso riscaldamento
CONSEGNA: Libero.
Per informazioni e appuntamenti contattare Gruppo GMG, Via Bourdillon n.17, Cernusco sul Naviglio (MI) 02 9240516 -- 328 5634135 -- 335 6856221.

Le informazioni e le immagini non costituiscono elemento contrattuale.


Caratteristiche principali
Codice:
AF-Neg-Corridoni
Città:
Cernusco sul Naviglio
Categoria:
Negozio
Spese condominiali:
2.600 € / anno
Locali:
2
Bagni:
1
Mq:
90
Piano:
Terra
Anno:
1988
Classe energetica:
D
414,64 kWh/m²a
Stato Immobile:
Buono
Grado:
Medio
Orientamento:
Ovest Est
Lati Liberi:
2
Arredi:
Non Arredato
Riscaldamento:
Centralizzato
Tipo Riscaldam.:
Caldaia
Tipo Impianto:
Radiatori
Fonte Energetica:
Gas
Acqua Calda:
Autonoma
Infissi:
Alluminio
Pavim. Bagno:
Ceramica
Pavimento:
Ceramica
Numero Vetrine:
Due
Accessori
Tapparelle Elettriche
Mappa
Richiedi informazioni
Invia
Cookie preference