LABORATORIO / UFFICIO - PIANO PRIMO

In vendita
Cernusco sul Naviglio - Via Torino, 34
105.000 €
Laboratorio
Categoria
105
m2
1
Locali
1
Bagni
1
Posti auto
Descrizione
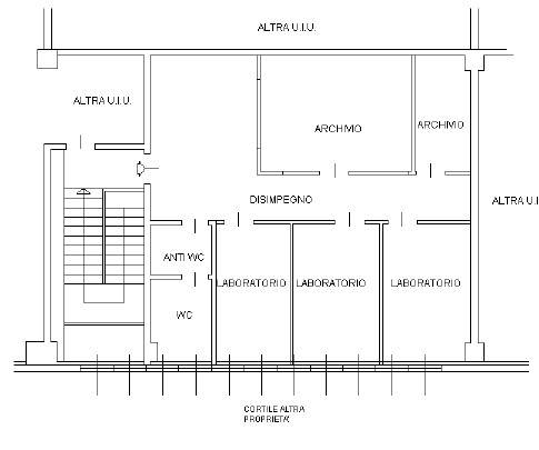
Vendita laboratorio/ufficio, MQ. 100 circa.
Cernusco sul Naviglio (MI) Via Torino 34, all'interno di un piccolo complesso commerciale/terziario.
Categoria catastale C3.
COMPOSIZIONE: Locale luminoso, con ampie vetrate, bagno con anti bagno, oltre area di cortile per 1 posto auto.
Divisione interna in 4 vani, con pareti mobili d'arredo in vetro.
Pavimento galleggiante, controsoffitto con corpi illuminanti.
H 3,0 metri.
Piano: Primo, senza ascensore
ZONA: Mista, commerciale/industriale, in fase di sviluppo, comoda con la Nuova Strada Cassanese e la Padana Superiore.

IMPIANTI: Autonomi.
CONSEGNA: Libero.

Per informazioni e appuntamenti contattare Gruppo GMG, Cernusco sul naviglio (MI) Via Bourdillon n.17
351 5491244 -- 335 6856221 -- 02 9240516

Le informazioni e le immagini non costituiscono elemento contrattuale.
Caratteristiche principali
Codice:
715-Torino_copia14
Città:
Cernusco sul Naviglio
Categoria:
Laboratorio
Locali:
1
Bagni:
1
Mq:
105
Posti auto:
1
Piano:
1
Anno:
2009
Anno ristrutturazione:
2014
Classe energetica:
C
Stato Immobile:
Buono
Grado:
Medio
Posizione:
Periferia
Orientamento:
Ovest
Lati Liberi:
1
Arredi:
Non Arredato
Riscaldamento:
Autonomo
Tipo Riscaldam.:
Pompa di Calore
Tipo Impianto:
Aria
Fonte Energetica:
Elettrico
Acqua Calda:
Autonoma
Raffrescamento:
Fan Coil
Infissi:
Alluminio Doppio Vetro
Serramenti:
Buono
Pavimento:
Laminato
Accessori
Doppi Vetri
Porta Blindata
Mappa
Richiedi informazioni
Invia
Cookie preference